A2 木造軸組金物耐力表 令和3年版
- Digital19,800 JPY
 

















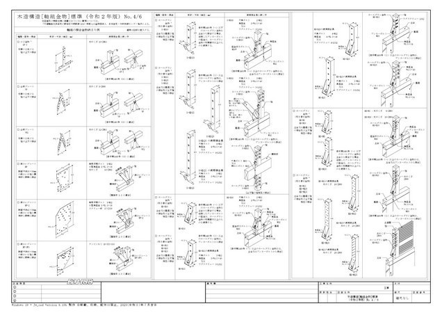
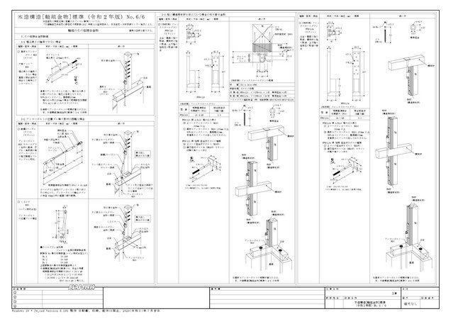
【 A2 木造軸組金物耐力表 令和3年版 】 仕事効率化ツール (令和3年 A2版) Jw_cad Ver8.24aで製作 Jww データ版 Windows10搭載タブレット PC を使用。 ホームページを更新 2022年 3月 9日 ★★★★ 公開 2021年 8月 5日 内容 ★★★★ 仕事効率化ツール 皆様からのご意見やご要望が多くよせられいろ いろと参考にさせていただきました。 姉妹品のデザイン A1、A2、A3 を統一化し、同 一内容に編集。 「木造軸組工法住宅の許容応力度設計(2017年)」 公益財団法人 日本住宅・木材技術センター発行 に準じて構造計算に必要な金物をまとめている。 また、軸組の金物工法に対応しZマーク表示金 物(Zマーク表示に新たに追加されたものを含む) にはない、しかし、必要となる金物をメーカー 記載し掲載しています。 特に、金物許容耐力など解りやすいように表に まとめており、短期許容耐力に 1.5倍できる金 物には、表中に [ ] 内数値で表示している。 A3版で仕様書として、印刷後、山折り(2つ折り) で、A4版マニュアルなるように製作。 Zマーク金物を中心にZマーク金物工法金物と 金物工法メーカーの金物を取り入れ製作、金物 工法メーカー(カネシン・タツミ) 金物工法メーカーのカネシン(プレセッター SU) ・タツミ(テックワン P3)梁受金物耐力を追加。 木造軸組金物工法(令46条2項の設計条件)と 金物工法金物耐力について メーカー指定による加工・組立の意義。 実際に設計している物件に使用し、あなたでも 簡単に理解できる表現。 よくある追加説明書を求める事項の内容・理由 回答に明確な根拠を示すのに苦労したものを2 つ例に ★★ ★★ ★★ ★ ★ ★★ ★★ ★★ 電子コンテンツのダウンロード販売の為、 返品は、できない商品となっています。 商品の詳しい情報は、専用ホームページを開設 しています。 商品情報の検討上、購入をお願いします。 ☆☆☆【 販売者 FujiGami フジガミ 】☆☆☆ 解説ホームページ http://fujigamihome.web.fc2.com ☆☆☆☆【 商品の詳しい情報 】☆☆☆☆ 専用ホームページを開設 http://fujigamihome.web.fc2.com/mark30/jww-zg11/jww-zg11.htm ご購入前に、商品に関する販売者の サイトにお立ち寄りください。 ☆ ☆ ☆ ☆ ☆ ☆ ☆ ☆ ☆ ☆ ☆ 内容 -------------------------------------------- 【ソフト名・登録名】 jww-zg11A2-2108 /A2木造軸組金物耐力表/令3 /jww 版/データ 6枚組 ☆☆姉妹品☆☆ jww-zg11A1-2108 /A1木造軸組金物耐力表/令3 /jww 版/データ 4枚組 jww-zg11A3-2108 /A3木造軸組金物耐力表/令3 /jww 版/データ 9枚組 ☆☆☆☆☆☆☆ 【バ ー ジ ョ ン】Ver.2108(令和3年版) 【動 作 環 境】Windows10搭載 PC + Jw_cad Ver8.24a 【著作権者】 DANJO 【掲載月日】 2021/8/5 --------------------------------------------- 著作権および使用条件 (1)著作権 この Data & Soft および付属ファイルの知的 所有権は以下のとおり著作権者が有します。 著作権者 DANJO 著作権者の権利を侵害する行為は、固くお断り いたします。 また、Data & Soft などを配布することを禁じ ます。 (2)免責事項 このData & Soft を使用した事によって発生し た損害は一切補償しません。 このData & Soft に不備があっても、作者はそ れを訂正する義務を負いません。 (3)プログラムの修正 個人で使用する際に、プログラムを修正するこ とは差し支えありませんが、その場合でも、著 作権表示は変更しないで下さい。 修正を加えたプログラムを配布することはご遠 慮ください。 (4)お問い合わせについて メールでのお問い合わせには原則としてお答え できません。 また、電話やFAX でのお問い合わせはご遠慮下 さい。 作者 DANJO Jw_cad の基本操作は、 個々に学習し自己責任でお願いします。 ------------------------------------------- 概要 シリーズ(A1・A2・A3)共通解説 初心者でも簡単に理解できる。 A1・A2・A3 版の図面サイズに合ったものを利用 「木造軸組工法住宅の許容応力度設計(2017年)」 公益財団法人 日本住宅・木材技術センター発行 に準じて構造計算に必要な金物をまとめている。 また、軸組の金物工法に対応しZマーク表示金物 (Zマーク表示に新たに追加されたものを含む) にはない、しかし、必要となる金物をメーカー記 載し掲載しています。 A3版のみ、印刷後、山折り(2つ折り)で、 A4版マニュアルなるように製作。 特に 金物許容耐力など解りやすいように表にまとめて おり、短期許容耐力に 1.5倍できる金物には、表 中に [ ] 内数値で表示している。 よく使用される金物として、 ・柱頭、柱脚パイプ金物 ・垂木止付け金物 ・座掘り座金ナットの金物 ・めり込み防止の金物 ・埋込長さが確保できない場合のアンカーボルト 金物 ・アンカーボルトの位置ズレの補正する金物 ・柱に取付く構造用受材の上から使用できる引き 寄せ金物 ・25 kN を超える引き寄せ金物 などを追加。 実用性の高い標準書にしました。 内容 ◎ 新(複数図面)方式採用、 1つのjww データの 中に複数の図面を格納グループの切り替えで 必要な図面が表示できる。 (1グループに1枚格納) ◎ 新(複数図面)方式採用の為、図面データ管理 が簡単になる。 ◎ 図面枠は、洗練されたデザイン。 ◎ 標準フォントをMS明朝。 ◎ プロテクトグループの整理と活用 ・プロテクトグループ / は、編集不可で表 示切替は、三段階を採用 [ 表示・非表示・グレー表示 ] ・プロテクトグループ X は、編集不可で表 示切替も不可 ・プロテクトグループ X / 以外は、自由 に編集も表示もできます。 したがって、本文をグレー表示することによ り、記載部分が解る。 ◇レイアウトの見やすいデザイン 軸組の接合金物概要 新たに金物工法メーカーの金物を追加 金物工法メーカー(カネシン・タツミ) 1 .一般事項 本表の仕様から「または同等以上」を省略して あるため、適用されていものを同等以上のもの に置き換えることができる。 の記載より現場に合わせて同等以上に置き換え ることができるようにしました。 2 .金物許容耐力 2-1 接合部の種類とN値及び必要耐力 2-2 接合部の樹種分類 2-3 接合具の短期許容耐力 2-4 アンカーボルトのコンクリートの短期付 着耐力 2-5 柱頭・柱脚のパイプ金物の引張耐力 2-6 筋かいプレートの壁倍率 2-7 めり込み防止金物の接地面積 Ae 2-8 火打金物の存在床倍率と許容せん断応力 2-9 接合金物の耐力と接合具 2-10 梁受け金物の耐力と木材の断面 2-11 横架材接合部の短期許容引張耐力 解 説 目 次 新たに金物工法メーカーの金物を追加、金物工法 メーカー(カネシン・タツミ) 審査機関より追加説明求められて明確な根拠資料 提出書類のまとめ。 よくある、追加説明書を求める事項の内容・理由 回答に明確な根拠を示すのに苦労したものを2つ 例に 木造軸組金物工法(令46条2項の設計条件) はじめに ■令46条第2項各号の条件内容を簡単に説明 ■令46条第2項各号の条件内容の根拠 第 46 条 〔建築基準法施行令〕の条文 昭和 62 年 1898 号 〔建築基準法関係告示〕 の条文 昭和 62 年 1899 号 〔建築基準法関係告示〕 の条文 金物工法金物耐力について 公益財団法人 日本住宅・木材技術センター発行 「木造軸組工法住宅の許容応力度設計(2017 年版)」 に準ずる。 柱頭/柱脚金物の設定(短期)kN について 継手/仕口金物の設定(短期)kN について 短期(長期)許容引張耐力の算定について 【設計実務者等の低減率αを 1.0 する根拠】 金物工法と金物メーカーの指定及び左記金物 メーカーのプレカット認定又は指定会社の高 い技術力の加工・組立メーカー指定による加 工・組立の意義。 【工事着手時の注意事項】 木造軸組金物耐力表の目次 木造軸組金物耐力表の目次解説 などを掲載
















