人通口補強配筋検討方法C(令和5年版)
- Digital48,400 JPY














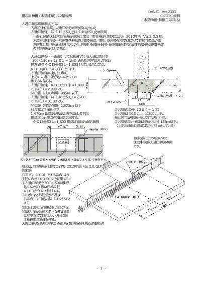
【 人通口補強配筋検討方法C(令和5年版) 】 人通口補強配筋の根拠と検討方法 (令和5年版) Calc版 ★★★★ 公開 2023年 3月 3日 内容 ★★★★ 仕事効率化ツールとして姉妹品とデザインを統一化。 皆様からのご意見やご要望が多くよせられいろいろと 参考にさせていただきました。 デザインを重視し、使用フォントを Meiryo UI に統 一。 使用鉄筋 SD295A の規格が廃止ともない SD295 の規 格に変更。 釣合い鉄筋比の解説シートを1枚追加し、釣合い鉄筋 比検討機能追加。 人通口補強配筋計算や簡易計算で釣合い鉄筋比検討機 能追加。 人通口補強配筋計算や簡易計算の解説の充実をはかる。 人通口補強配筋の根拠と検討方法をみなさんのご要望 により簡単に設定ができるように、図解と解説をもり こみ製作しています。 現在設計している建築物・長期優良住宅や構造計算物 件で使用 ご要望により入力を理解し易いように解説部には仮定 入力してあります。 入替入力ができるようにしてあります。 ★★ ★★ ★★ ★ ★ ★★ ★★ ★★ 電子コンテンツのダウンロード販売の為、 返品は、できない商品となっています。 商品の詳しい情報は、専用ホームページを開設してい ます。 商品情報の検討上、購入をお願いします。 ☆☆☆【 販売者 FujiGami フジガミ 】☆☆☆ 解説ホームページをリニューアル http://fujigamihome.web.fc2.com ☆☆☆☆【 商品の詳しい情報 】☆☆☆☆ 専用ホームページを開設 http://fujigamihome.web.fc2.com/mark40/exca-wsz5/exca-wsz5.htm ご購入前に、商品に関する販売者の サイトにお立ち寄りください。 ☆☆☆☆☆☆☆☆☆☆☆☆☆☆☆☆☆☆☆☆☆ 内容 ------------------------------------------ 【ソフト名・登録名】 exca-wsz5-c2303/人通口補強配筋検討方法C 令和5年版/Calc版 ODS形式 ☆☆姉妹品☆☆ exca-wsz5-e2303/人通口補強配筋検討方法 令和5年版/Excel版 XLS形式 ☆☆☆☆☆☆☆ 【バ ー ジ ョ ン】Ver.2303 【動 作 環 境】Calc版 LibreOffice 7.4.5.1 Calc Open Office Calc 非対応 (マクロを使用していません) Excel版 Microsoft Office Excel 2003/2007/2016/2019/364 (マクロを使用していません) 【著作権者】 DANJO 【掲載月日】 2023/3/3 【使用日本語フォント】フォントについては、 Windows の Meiryo UI を搭載していないパソナルコ ンピーターの場合、Meiryo UIが表現できませんので 、類似フォントを使用することになるため、文字ず れや、セル幅に文字がはいりきれず #### のような 表示になる場合があります。 この場合、対応としては、A4版いっぱいに一部セル 幅を広げていますが、上記ようにならないフォント を使用してください。 また、A4版で製作してますが、A4版で入らない場合 は、縮小印刷して下さい。 ------------------------------------------- 著作権および使用条件 (1)著作権 この Data & Soft および付属ファイルの知的所有 権は以下のとおり著作権者が有します。 著作権者 DANJO 著作権者の権利を侵害する行為は、固くお断りいた します。 また、Data & Soft などを配布することを禁じます。 (2)免責事項 このData & Soft を使用した事によって発生した損 害は一切補償しません。 このData & Soft に不備があっても、作者はそれを 訂正する義務を負いません。 (3)プログラムの修正 個人で使用する際に、プログラムを修正することは 差し支えありませんが、その場合でも、著作権表示 は変更しないで下さい。 修正を加えたプログラムを配布することはご遠慮く ださい。 (4)お問い合わせについて メールでのお問い合わせには原則としてお答えでき ません。 また、電話やFAX でのお問い合わせはご遠慮下さい。 作者 DANJO Calc・Excel の基本操作は、個々に学習し自己責任 でお願いします。 ------------------------------------------- 概要 <人通口補強配筋検討方法> 皆様からのご意見やご要望が多くよせられいろいろと 参考にさせていただきました。 人通口補強配筋検討方法「推奨基礎仕様マニュアル 2010年版 Ver.2.0.0」において、木造戸建住宅の一般 的なベタ基礎仕様の構造、性能、鉄筋の配筋などにつ いて信頼性の高い標準的な仕様・基礎図面を広く公開、 瑕疵担保責任保険・長期優良住宅認定制度の標準的な 基礎の“推奨基礎”として普及。 これを構造計算ソフ ト(KIZUKURIを例に)で人通口補強配筋検討する方法解 説。 使い方は、構造計算ソフトの値を使って手計算する方法 と簡易計算であなたも人通口補強配筋検討をする方法。 釣合い鉄筋比の解説(釣合い鉄筋比について)を追加し、 釣合い鉄筋比検討機能が追加されました。 この機能により、構造計算ソフトの値を使って手計算・ 簡易計算ともに釣合い鉄筋比の解説(釣合い鉄筋比につ いて)を追加し、釣合い鉄筋比検討機能追加であなたも 人通口補強配筋検討をする方法としました。 姉妹品とデザインを統一化。 内容 わたしのお客様のご要望により制作、実際に使用。 解説部には仮入力してあるので解かりやすいように、ま た入替入力ができるようにしてあります。 仕事効率化、皆様からのご意見やご要望が多くよせられ いろいろと参考にさせていただきました。 ●曲げが不足する場合、曲げ、せん断耐力が不足する場 合の対応方法 人通口補強負担幅(接地圧負担幅)詳細検討機能も準備 しています。 ここでは、審査機関からの質疑があったので根拠をわか るように作成しています。 今回は、釣合い鉄筋比について求めてられた場合は、釣 合い鉄筋比についてのシートで根拠をわかるように作成 しています。 編集操作を可能にするシート保護解除 ID を設定し計算 シートを自由に編集。 保護解除は、自己責任(プログラミング部分も触れため間 違って壊す場合があります)でお願いします。 保護解除する場合は、必ずファイルをコピーしてから保 護解除をお願いします。 人通口補強配筋検討方法 [入力] の画面に合わせて下記 開設。













