ex外壁開口部制限jww
- Digital20,900 JPY
 





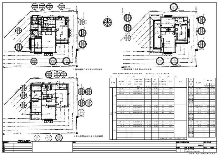
【ex外壁開口部制限jww】 ex外壁開口部制限jww 外壁の開口部の制限に関する計算表で計算 Excel 計算シ-ト 仕事効率化ツール ホームページを更新 2022年 2月17日 ホームページを更新 2019年 7月23日 ★★★★ 公開 2019年3月19日 内容 ★★★★ 仕事効率化ツール 皆様からのご意見や要望が多くよせられいろい ろと参考にさせて頂きました。 初心者でも簡単に外壁開口部制限は、外壁の開 口部の制限に関する計算表で建築基準法施行令 第136条の2第1項で定められている。 JWW の作図見本付。 私が設計した建物の時に作成し、使用したもの を再編集。 ★★ ★★ ★★ ★ ★ ★★ ★★ ★★ 電子コンテンツのダウンロード販売の為、 返品は、できない商品となっています。 商品の詳しい情報は、専用ホームページを開設 しています。 商品情報の検討の上、購入をお願いします。 ☆☆☆【 販売者 FujiGami フジガミ 】☆☆☆ 解説ホームページをリニューアル http://fujigamihome.web.fc2.com ☆☆☆☆【 商品の詳しい情報 】☆☆☆☆ 専用ホームページを開設 http://fujigamihome.web.fc2.com/mark01/ex011gws/ex011gws.htm ご購入前に、商品に関する販売者の サイトにお立ち寄りください。 ☆☆☆☆☆☆☆☆☆☆☆☆☆☆☆☆☆☆☆☆☆ 内容 ----------------------------------------- 【ソフト名・登録名】 ex011gws-1604 /ex外壁開口部制限jww Excel 計算シ-ト ☆☆☆☆☆☆☆ 【バ ー ジ ョ ン】Ver.1604 【動 作 環 境】Windows10搭載 PC +Microsoft Office Excel 2003/2007/2016/2019 (マクロを使用していません。) 【著作権者】 DANJO 【掲載月日】 2019/3/19(2016/4製作) 【使用日本語フォント】 フォントについては、 Windows の MS 明朝 を搭載していないパソナ ルコンピーターの場合、 MS 明朝が表現でき ませんので、類似フォントを使用することに なるため、文字ずれや、セル幅に文字がはい りきれず、#### のような表示になる場合があ ります。 この場合、対応としては、A4版いっぱいに一部 セル幅を広げていますが、上記ようにならない フォントを使用してください。 また、A4版で製作してますが、A4版で入らない 場合は、縮小印刷して下さい。 -------------------------------------------- 著作権および使用条件 (1)著作権 この Data & Softo および付属ファイルの知 的所有権は以下のとおり著作権者が有します 。 著作権者 DANJO 著作権者の権利を侵害する行為は、固くお断 りいたします。 また、Data & Softo などを配布することを禁 じます。 (2)免責事項 このData & Softo を使用した事によって発生 した損害は一切補償しません。 このData & Softo に不備があっても、作者は それを訂正する義務を負いません。 (3)プログラムの修正 個人で使用する際に、プログラムを修正する ことは差し支えありませんが、その場合でも 、著作権表示は変更しないで下さい。 修正を加えたプログラムを配布することはご 遠慮ください。 (4)お問い合わせについて メールでのお問い合わせには原則としてお答 えできません。 また、電話やFAX でのお問い合わせはご遠慮 下さい。 作者 DANJO Excel、Jw_cad(Windows版) の基本操作は、 個々に学習し自己責任でお願いします。 ------------------------------------------- 内容 外壁の開口部の制限に関する計算表で建築基準 法施行令 第136条の2第1項で定められている。 JWW での作図見本付。 編集操作を可能にするシート保護解除 ID 付で Excel 計算シートを自由に編集。 シート保護解除について Excel の基本操作は、個々に学習しして下さい。 Excel の編集操作は、自己責任でお願いします。 ひと目で解る入力コマンド 外壁の開口部の制限に関する計算表・らくらく スライド機能・簡単選択と入力・自動計算 建築基準法施行令 第136条の2第1項第一号の条 文や[計算の手順]の解説も搭載 仮入力で解りやすく解説付 概要 外壁の開口部の制限に関する計算表で計算 計算結果(外壁の開口部の制限に関するの計算 表)を JWW に変換または、コピーによる貼付け をする。 あとは、JWW で編集。 JWW に変換をする場合の無料 Excel 用 アドイ ンソフト。 裏ワザ解説やJWW に変換をする方法など。 JWW にコピーによる貼付けをする場合の無料 Excel 用 アドインソフト。 選択セル範囲の設定方法。 以上の内容 無料 Excel 用 アドインソフトは、個々に入 手して下さい。 ******************** 2016年3月31日アップグレード 動作確認確認日2016年3月31日 Windows 10 + Microsoft Office Excel 2016 の組合せ Excel to Jw_win ver 1.53でJw_win ver 8.01b に貼付がてきるのを確認できました。 一部解説を追加しました。 ******************** 2013年8月20日アップグレード (アップグレードは、有料です、再購入お願い します。) *******更新内容******* 一部公式を変更し入力時にセル表示を少なく しました。 ******* *******




